Verkauft
Wohnung
Vermietete Eigentumswohnung zur Kapitalanlage
Rostocker Straße 6, 45968 Gladbeck
ca. 78 m²
Wohnfläche
4
Zimmer
1959
Baujahr
Objektbeschreibung
Dieses Angebot richtet sich ausschließlich an Kapitalanleger (nicht Selbstnutzer), da die Mieter einen lebenslangen Kündigungsschutz - auch auf Eigenbedarf erhalten.
Es handelt sich hier um eine sehr gut aufgeteilte 4-Zimmer-Eigentumswohnungen mit Küche, Diele und Bad.
Die gute Lage in Gladbeck-Rosenhügel und die sehr schöne Anlage garantiert dem Kapitalanleger eine langfristige Wiedervermietbarkeit bei einem sehr guten Mietniveau.
Die genaue Adresse lautet: 45968 Gladbeck-Rosenhügel, Rostocker Straße 6 - WE 011 - 1L.
Es handelt sich hier um eine sehr gut aufgeteilte 4-Zimmer-Eigentumswohnungen mit Küche, Diele und Bad.
Die gute Lage in Gladbeck-Rosenhügel und die sehr schöne Anlage garantiert dem Kapitalanleger eine langfristige Wiedervermietbarkeit bei einem sehr guten Mietniveau.
Die genaue Adresse lautet: 45968 Gladbeck-Rosenhügel, Rostocker Straße 6 - WE 011 - 1L.
Ausstattung
Diese sehr schöne 4-Zimmer-Eigentumswohnung bietet folgendes:
+ Energieverbrauchsausweis
+ Wert des Endenergieverbrauchs: 139 kWH/(m²*a)
+ wesentliche Energieträger für die Heizung des Gebäudes: Erdgas_H
+ Baujahr Gebäude: 1959
+ Baujahr Wärmeerzeuger: 1999
+ Energieeffizienzklasse: E
+ 1. Obergeschoss links
+ Wohnfläche ca. 78 m²
+ Balkon
+ 1 Wohnzimmer
+ 1 Schlafzimmer
+ 2 Kinderzimmer
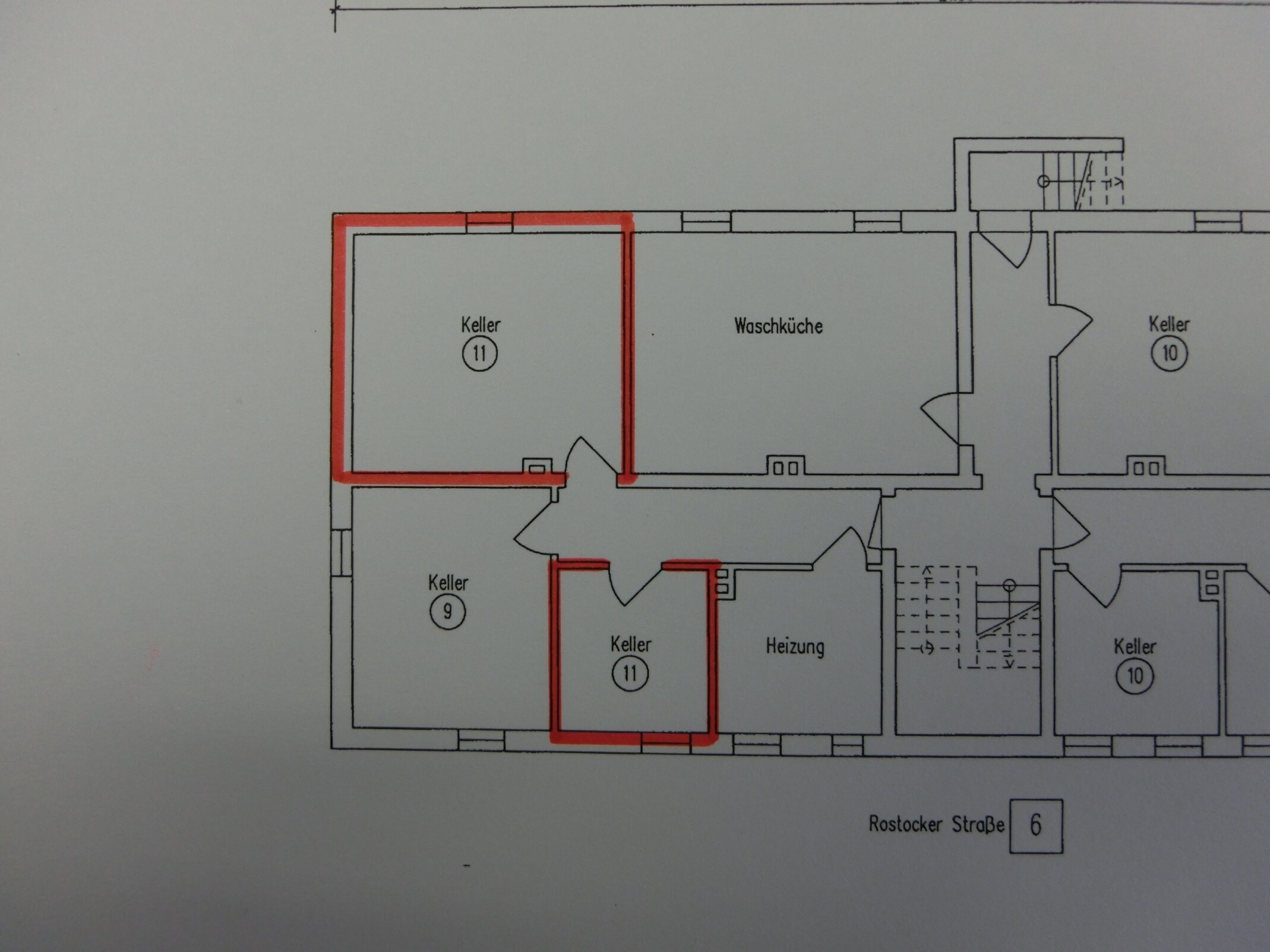
+ 2 private Kellerräume
+ zzgl. gemeinschaftliche Kellerräume
+ Energieverbrauchsausweis
+ Wert des Endenergieverbrauchs: 139 kWH/(m²*a)
+ wesentliche Energieträger für die Heizung des Gebäudes: Erdgas_H
+ Baujahr Gebäude: 1959
+ Baujahr Wärmeerzeuger: 1999
+ Energieeffizienzklasse: E
+ 1. Obergeschoss links
+ Wohnfläche ca. 78 m²
+ Balkon
+ 1 Wohnzimmer
+ 1 Schlafzimmer
+ 2 Kinderzimmer
+ 2 private Kellerräume
+ zzgl. gemeinschaftliche Kellerräume
Grundrisse
Lage
Durch die zentrale Lage im Stadtteil sind alle Einrichtungen des täglichen Bedarfs gut erreichbar.
Die Innenstadt von Gladbeck, Gelsenkirchen, Bottrop und Essen sowie die Autobahnen A 42, A2/A3 sind in wenigen Minuten erreichbar.
Die Innenstadt von Gladbeck, Gelsenkirchen, Bottrop und Essen sowie die Autobahnen A 42, A2/A3 sind in wenigen Minuten erreichbar.
Sonstiges
Gerne senden wir Ihnen ein Exposé mit weiteren Bildern zu.
Bitte haben Sie jedoch Verständnis dafür, dass nur vollständig ausgefüllte Kontaktformulare bearbeitet werden - das heißt Angabe von:
+ Vor- und Nachname
+ Straße und Haus-Nr.
+ PLZ und Ort
+ Telefon-Nr.
+ E-Mail
Der Kauf ist für den Käufer provisionsfrei.
Alle Angaben in diesem Exposé wurden sorgfältig und so vollständig wie möglich gemacht und basieren ausschließlich auf Informationen, die uns vom Eigentümer übermittelt wurden. Die Angaben in diesem Exposé erfolgen daher ohne jede Gewähr. Soweit die Grundrissgrafiken Maßangaben und Einrichtungen enthalten, wird auch für diese jegliche Haftung ausgeschlossen. Ebenso weisen wir darauf hin, dass die Grundrissgrafiken Aufgrund von Scann- und Dateihinterlegungen nicht immer maßstabsgetreu sind.
Maßgeblich sind die im Kaufvertrag geschlossenen Vereinbarungen.
Preiserhöhungen und Zwischenverkauf bleiben vorbehalten.
Bitte haben Sie jedoch Verständnis dafür, dass nur vollständig ausgefüllte Kontaktformulare bearbeitet werden - das heißt Angabe von:
+ Vor- und Nachname
+ Straße und Haus-Nr.
+ PLZ und Ort
+ Telefon-Nr.
Der Kauf ist für den Käufer provisionsfrei.
Alle Angaben in diesem Exposé wurden sorgfältig und so vollständig wie möglich gemacht und basieren ausschließlich auf Informationen, die uns vom Eigentümer übermittelt wurden. Die Angaben in diesem Exposé erfolgen daher ohne jede Gewähr. Soweit die Grundrissgrafiken Maßangaben und Einrichtungen enthalten, wird auch für diese jegliche Haftung ausgeschlossen. Ebenso weisen wir darauf hin, dass die Grundrissgrafiken Aufgrund von Scann- und Dateihinterlegungen nicht immer maßstabsgetreu sind.
Maßgeblich sind die im Kaufvertrag geschlossenen Vereinbarungen.
Preiserhöhungen und Zwischenverkauf bleiben vorbehalten.
Vermietete Eigentumswohnung zur Kapitalanlage
Rostocker Straße 6, 45968 Gladbeck
Eckdaten
Wohnfläche
ca. 78 m²
Zimmer
4
Baujahr
1959
Energieausweis
Ausweisart
Verbrauchsausweis
Energieverbrauch
139 kWh/(m²a) kWh/m²a
Befeuerung
Gas
Energieträger
Gas
Objekt-Nr.: ETW 61